Forum Discussion

Angry_Gandhi's avatar
Angry_Gandhi
Tuning in
3 months ago

How to plan for VM in renovation

Hi all,

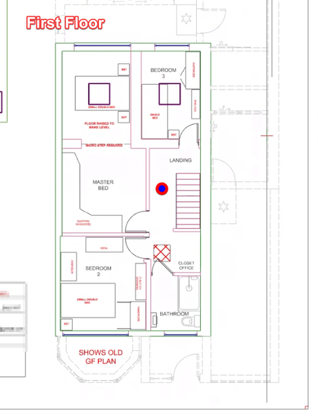
I'm doing a renovation and am confused about how to go about looking into the future in order to get VM in the house.

The below image shows the electrical plan I've made.

My intention is to have the router/networking hub under the stairs (purple triangle) and a VM TV box in the sitting room and family room (blue squares).

The work is still under way - internal walls for example aren't even up.

I will be using WiFi meshes, an ethernet hub & the router will be put into modem mode.

My questions are:

  1. Should holes be drilled in the external walls in preparation for the TV boxes?
  2. If so, will these holes definitely be used by VM?
  3. Is there a VM department where I can talk to someone about the plans and my intentions?
  4. How would I go about having the router put under the stairs (I want the cabling to be as un-noticeable as possible) ?
  5. I'm not sure whether I should use coaxial ports for the TV boxes - are these needed?

In the family room I intend to have a media wall and the TV going over a recess.

The TV box won't be on show - I'm concerned that by doing this we're not going to be able to use the VM box or it'll be dodgy/temperamental. 

If anyone can help with the above that'd be great.

Thanks,

Sean

 

30 Replies

  • Roger_Gooner's avatar
    Roger_Gooner
    Alessandro Volta

    Some general guidelines: place the hub on a hard, flat surface in its upright position with at least  6 inches of free space above and 2–4 inches on each side. There will be heat buildup (from the hub, ONT (if fibre), Eero router, PoE switch) but you may not need a cooling fan if temperature is between 18–27°C.

  • Hi all,

    Thanks for the replies.   Another long one from me.  I'm essentially typing as I think.

    I think I need to maybe look for a good company in my area to advise/sort this out but I'm still looking into things myself.   It's frustratingly interesting.

    I joined a forum and one of the replies about the PoE switch I've seen on Screwfix was ' I don't know much about those odd off-brand switches '

    That comment alone opened more questions :/

    I'm currently looking into a number of other things including server racks (enclosed or frame), patch panels etc etc.

    I was going with CAT6 rather than CAT6a as it can do 10Gbps if under 55m, which is going to be the case for my house.

    So, simply put this is what I want

    I've worked out that I'll need 20 cables run around the house - different rooms have different quantities and this number includes a few free ports here and there.  A 24 port unmanaged switch will be fine for my needs.

    I want to be able to be a little dependant on WiFi as possible.  And, the stream box using not WiFi is a good point.... I'm old school and like to record stuff but may eventually get a stream one.

    I know about Ubiquiti but have had no problems with Eero, but will be happy to change if needed.

    Eero have a ceiling/wall mounted PoE access point (https://www.amazon.co.uk/eero-PoE-6/dp/B0DQB3FYGN).  They also have a Gateway (https://support.eero.com/hc/en-us/articles/8959150730267-Introducing-eero-PoE-Gateway) but this isn't available in the UK.

    This is why I was looking into the one I previously posted Labgear PoE because to my eyes, this is essentially the same.

     So, similar to how I currently have the Eero devices set up, the VM router is in modem mode and a Eero device is plugged in - this is now our modem.  Additional Eeros add to the mesh.

    I will certainly not be using the VM hub as a router - the final straw when I was getting 0.03Mbps :D .

    Instead of plugging in Eero devices and have them dotted around the house I was thinking about the PoE ones so it all looked cleaner/tidier. 

    In my head the diagram I posted is how it'll work

    -----------------

    I'm looking at how to have all this set up.

    Everything in my plan images are to scale and I'm currently planning things. 

    I was looking at this case https://www.amazon.co.uk/MT-VIKI-Cabinet-Enclosure-Equipment-Included/dp/B0CSK2RX71?th=1

    But in the space I have, it's huge. Blue box and the 24 port switch is to scale too.

    The switch in the image is the 1024D which I've just found out is a desktop version - the 1024 is more suitable to racks (440mm width)

    Now I know this I wonder whether a  server rack is even needed - on the flip side I think it is as I'l want a patch panel to keep things neat.

    The case I looked at has 2.5x more depth than the rack-mountable switch so I need to find something that's more streamlined.

     

    A question - When I got my new VM hub, it said it needs to be kept upright.  Do you know if this is still the case when in modem mode?

    It'd be a confidence builder if someone can tell me if I'm on the right track with what's in my head :D

    Thanks again all.

    • Angry_Gandhi's avatar
      Angry_Gandhi
      Tuning in

      Hi all,

      Yeah, the forum makes it hard to keep track - it doesn't help that I'm posting long messages.

      I've now replied to my last post to try to keep things contained.

      What also isn't great is that it keeps signing me out - what is GREAT is that it keeps my message as a draft.

      Anyway, back to work :D

      From my understanding it needs to be an unmanaged switch, I'll go more into this below.

      Swansea has full fibre - and checking my postcode on Netomnia (and others) I can get up to 10Gbps

      I'm on a 1Gbps plan with Virgin.

      I currently have a Hub 5 (not Hub 5X) but Tudor wrote in a post 3 years ago that VM assured him the Hub 5X will have a firmware update to be able to turn on modem mode.

      It looks like this hasn't happened.

      How much of an issue is this?  The Hub 5 can apparently achieve these speeds (1x 2.5Gbps, 3x 1Gbps)....... whatever that means :/ .

      As I'm on 1Gbps then I'm quite happy with this router as it looks like the Hub 5X will scupper my plans somewhat.

      This is what I was thinking.  Router cable runs though the garage and through the wall.

      TV ones run down the side of the house.

      I'd pay a VM technician to help me figure this out.  I currently don't have ceilings (or a sodding roof) and the driveway is a building site so would rather things be planned now instead of drilling though my lovely painted walls.

      Do you know if it's possible to get a VM technician out to plan things or do I need to call VM to find this out?

      I don't think my image below is going to work.... but correct me if I'm wrong.

      With regards to the cabinet.... I'm a stickler for organisation and don't want any long cables shown. 

      I can still have open shelving with a patch panel but was thinking of a more contained setup.  I need to get in touch with a network company I think.

      I contacted Eero and they replied with this:

      I've only now had time to reply so just sent this - I'll send in 2 screenshots so it's not small.

       

      Sorry about the confusion with my section & floorplan - I'm still figuring things out and the blue box on the floorplan shows a 450mm depth cabinet - but I can go smaller which is good.

      Thanks again all.

       

      • Angry_Gandhi's avatar
        Angry_Gandhi
        Tuning in

        Thanks both.

        I've also joined a UK server/networking group on FB.

        I've essentially mentioned what I did in my last post.  If you don't mind I'm just going to put screenshots of what people said.  I've blurred out names to avoid VM saying computer says nooooo.

        Everyone has their own thoughts/ways and what they've said may be on par with this thread but you're more insightful (I'd hope :) ) when it comes to VM. 

        I'm glad I've looked into this but just want it done so am going to get someone to do it.  I'm also going to call VM to see if I can pay for anyone's time to go over this and hopefully come to site.

        Here's an image of where I'm intending to put the ceiling mounted PoE APs.

        My replies

         

    • goslow's avatar
      goslow
      Alessandro Volta
      Angry_Gandhi wrote:

      Hi all,

      Thanks for the replies.   Another long one from me.  I'm essentially typing as I think.

      The topic has become quite long now so apologies if I have missed info already explained above somewhere ...

      If your plan is to put the VM hub in modem mode, and use the router function of the Eero system, then I am not sure your network schematic would work as drawn above. I have not used Eero before but online info seems to show a unit with two network sockets on the back.

      Do you not need to connect your first (designated as a router) Eero into the VM hub (in modem mode) then connect the rest of your network via the second network socket on the first router Eero. I don't think you can have a network switch as the first device plugged into the hub when the hub is in modem mode.

      As regards the wiring of your comm's cupboard, fit a 24 port patch panel to terminate the cables coming in from the rest of the house. You could fit a small comm's cabinet (vertical options are available) or a patching frame (just a bracket to support the patch panel)

      It is possibly to terminate each incoming wire with a RJ45 plug but, in my experience, the plugs eventually get damaged and the latching lever breaks off leaving an unreliable connection (unless you re-terminate).

      • Adduxi's avatar
        Adduxi
        Very Insightful Person
        goslow wrote:

        I don't think you can have a network switch as the first device plugged into the hub when the hub is in modem mode.

        That is correct, but the OP has a Router in place beside the Hub, so that's fine.

        goslow wrote:

        It is possibly to terminate each incoming wire with a RJ45 plug

        I must admit, I've done this as the termination points rarely need unplugged as they stay in the first switch.  Not "proper" but it works.  :-) 

    • Adduxi's avatar
      Adduxi
      Very Insightful Person

      Angry_Gandhi wrote:

      When I got my new VM hub, it said it needs to be kept upright.  Do you know if this is still the case when in modem mode?

      Yes, it does for thermal reasons.

      However, the big point as asked by ​  is about the cabling from VM.  If you are locating the Hub inside, where are you intending to get the cables in from?  Are you in a legacy co-ax area, or a Nexfibre XGS-PON FTTP area, or did I miss this answer?  If co-ax then, yes modem mode is okay, if in a Nexfibre area, then the Hub 5X has no modem mode.

      Irrespective of this, you still need to think of conduit so VM can run the cable(s).  It should also be future proofed for any other ISP cable runs.

      As for the cabinet, it's not really needed unless you need to stop anyone from "poking" at the cables.  You can use any open shelving to set the kit on, with the exception of perhaps the patch panel (if needed).

  • Roger_Gooner's avatar
    Roger_Gooner
    Alessandro Volta

    You should centralise your comms by installing two double sockets (or two triple sockets can be better) under the stairs for the VM hub, the ONT (for a fibre install), your POE-enabled network switch with patch panel, main Eero node (possibly) and any future powered kit. This is a good time to think about surge protection for your kit.

    Use solid cat 6 cables to each room that needs broadband and terminated at RJ45 sockets with stranded cat 6 for patch cords. TV and Stream boxes are best connected by Ethernet and all Eero nodes must be connected by cat 6 for wired backhaul (gives best performance). If you have a preferred path for VM's cabling which is under floors or behind walls, then install conduits with pull cords.

    Going back to VM cabling: the entry point is almost always at the front of the house and opposite that point the cable inside, either coaxial or fibre, is run to the devices. If it's coaxial it will be run to the hub and TV box(es), if it's fibre it will be run to an ONT which can be to your comms place. All of this will be done by VM.

  • Adduxi's avatar
    Adduxi
    Very Insightful Person

    Very valid points indeed Tudor​   I would go one further and suggest parts of the core infrastructure could be done with fibre?  Very small diameter cable, interference free, and will do greater speeds for the foreseeable future, but more expensive. 

    Also, look at switches with a minimum of 2.5Gb ports, 10Gb uplinks being a must as well.  Again, uplinks can be fibre patched with SPF modules.

    Technology is moving quite fast at the moment, so 1Gb was great not so long ago, but now it's considered as a starting point.  Same with Wifi advances, Wifi 5 was the norm, now it's all about Wifi 7 and triple band.

    If I had the chance to redo my "flood" wiring all over again, I would do it differently for sure.

    Bottom line, how deep are your pockets ...   ;-)

  • Hi, me again.

    Since my initial post I've now decided to be a wired as possible in my renovation.

    To the point where I'm going to have a 24 port gigabit switch, patch panels etc.

    I'm still learning about this and trying to figure things out.

    In my current house (that we rent so can’t make changes to) I have 3x Eero devices (1 plugged into the router).

    I’ve never had an issue with Eero so am going to stick with them.

    I had intended to use these in the new house (they’ll need to be plugged into the mains) but am leaning more towards PoE ones fixed to the ceilings and/or walls.

    Now, when mentioning this to my builder and electrician they said that these are only used in hospitals, offices etc.

    I initially accepted this but this isn’t the case.

    So, they don’t know it yet but I’m going to be doing it.

    As the electrician hasn’t filled me with confidence, I’m looking into all this myself and will either tell him what to do or I’ll get someone in.

    My question is this: Have I understood the setup for my house networking hub?

     

    The switch I'm looking at is: https://www.screwfix.com/p/tp-link-tl-sg1024d-24-port-desktop-rackmount-network-switch-black/239rn

    And the PoE switch: https://www.screwfix.com/p/labgear-60052pi-s-4-port-4-2-port-poe-10-100-1000mbps-switch-unmanaged-gigabit-poe-network-switch-black/712YE?tc=CB1

    • goslow's avatar
      goslow
      Alessandro Volta

      Are you planning to use the VM hub as a router and the Eero as access points?

      I have never used Eero before but I would assume its capabilities are far greater than those of a VM hub.

      • Adduxi's avatar
        Adduxi
        Very Insightful Person

        Eero do actual AP's, so those will be just PoE AP's.  They also do a full blown non wifi router, the Eero Gateway.  Not sure if it's sold in the UK though.  I prefer this method as it doesn't restrict the wifi to a single point.

    • Tudor's avatar
      Tudor
      Very Insightful Person
      1. Electricians are ok for just putting in the cables, but very few understand networking at all.
      2. As you are starting with a ‘clean sheet’ I would be looking for the future, not some currently old equipment. You need to think about WiFi 7 and access points with all 3 bands, 2.4, 5 and 6 Ghz radios. Also Ethernet 6A cables, Ethernet 7 or 8 cables are not needed at all just waste of money, 6A will cope with 10G up to the distances in a home.

         The equipment  I use is by Ubiquiti/Unifi and I cannot recommend any other at the moment. Most of their latest units support 2.5 and 10 Ghz.
      3. Look at networking outlets, not the well known retail outlets who are mostly networking blind.
      4. Basically it is down to how much you wish to spend.
  • Tudor's avatar
    Tudor
    Very Insightful Person

    "I will be using WiFi meshes". You could use a mesh system, but it would work much better if the units were Ethernet cabled back to your router. Better still is to use Wireless Access Points. I use WAPs, but ceiling ones which are PoE ones, they only need just an Ethernet cable. They look like fire alarm units and you have no unsightly wires trailing about. Even with a standard mesh system your have to have somewhere to place them and mains power.

    My setup is VM Hub5 under the floor under the stairs, stays very cool. Plain router, no WiFi, under the stairs with PoE network switch for WAPs and cameras. Ceiling mounted WAPs upstairs and down. V6 in living room, Ethernet cabled back to the router.

  • nodrogd's avatar
    nodrogd
    Very Insightful Person

    I hate to complicate the situation further.

    First question to ask is are you in a legacy VM cabled area or one of the new NexFibre FFTP areas. VM now runs three different types of network depending on location & they all have different installation scenarios & also different equipment in the house.

    Also VM only provides TV streaming boxes as standard now. These are WiFI or Ethernet connected, but do NOT record TV channels. V360 recording boxes are only provided by request (at additional cost) in legacy HFC or RFoG network type areas. ALL multiroom boxes are now the streamer type hence no coaxial requirement. The V360 main box does require copper coax from an external source in HFC areas & internally in RFoG areas.

    NexFibre FTTP is a single fibre connection direct to the hub. VM are also well into an upgrade program that will see FTTP being rolled out & eventually replacing HFC/RFoG connections in the coming years.